Morgan Street House

Situated on the edge of the Historic Fourth and Gill neighborhood and two rapidly growing commercial corridors, Morgan Street House is a sensitive infill project that mediates scale, typology, massing, and materiality of two converging urban contexts. The design of the single-family residence bridges the past, present, and future trajectory of a dynamic site condition, embodying the evolution of historic residential fabric and emerging commercial districts within close proximity to Knoxville’s urban core.

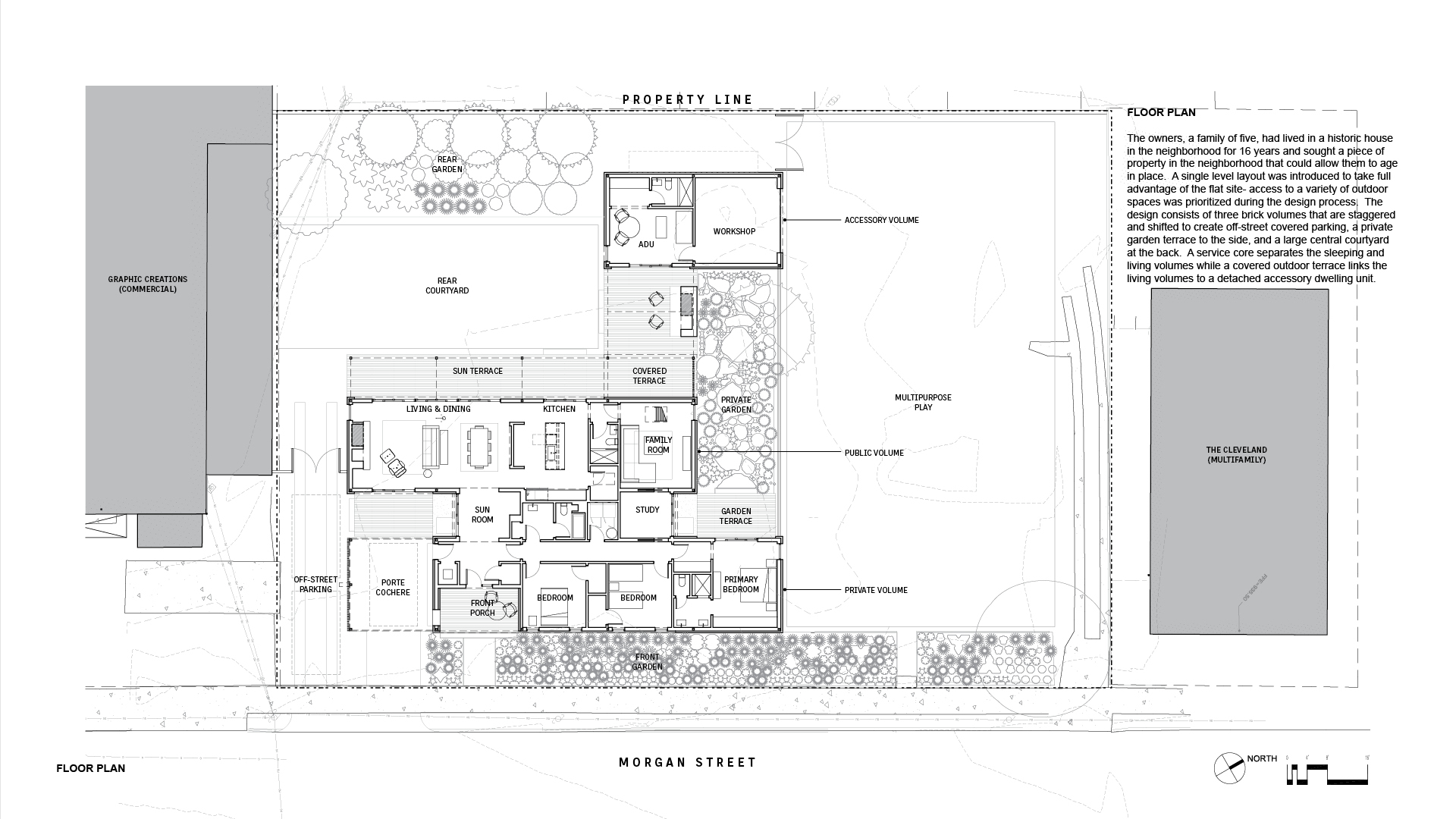
The site was originally part of an early streetcar neighborhood developed around the turn of the 20th century. The lot was a rare 100’ wide double lot originally occupied by two attached brick rowhouses which were removed in the 1960’s when this part of the neighborhood began to transition to commercial and industrial uses. The empty lot was absorbed within an historic overlay that was established in the mid-1980s as a unique edge condition trapped between two typologies.

The owners, a family of five, had lived in a historic house in the neighborhood for 16 years and sought a piece of property in the neighborhood that could allow them to age in place, which made the double lot ideal. A single level layout was introduced to take full advantage of the flat site and access to a variety of outdoor spaces was a key design driver. The design consists of three brick volumes, public, private, and accessory, each staggered and shifted from one another to create off-street covered parking, a private garden terrace to the side, and a large central rear courtyard. A service core separates the sleeping and living volumes while a covered outdoor terrace links the living volumes to a detached accessory dwelling unit.

Durability and sustainability were primary drivers in material selection. Brick, a primary material for existing buildings in the neighborhood, was selected as the primary cladding system for the house. Shiplap polyash siding in-sets provide domestic scale, referencing the single-family houses located within the historic overlay. Accoya acetylated radiata pine was chosen for outdoor decking, trellis, and screens due to its durability and sustainable attributes.

The owners desired the building to incorporate best practices in both passive and active systems. Active systems include a rainwater harvesting system which captures and holds 3500 gallons of stormwater that is treated for potability on site and used as a first source fulfilling over 90% of domestic water demand. A rooftop-mounted 10.9kw photovoltaic system offsets 87% of the energy utilized by the family. The system is grid-tied; excess power produced during the day is fed back to the City’s electrical grid.

Client:

Brandon and Ashley Pace

Size:

3,565 Square Feet (Includes 512 Square Foot ADU)

Cost:

Withheld

Completion Date:

Fall 2023

Project Team:

Brandon Pace, FAIA LEED AP
Ashley Pace, RA
Natalia Almonacid

Photo Credits:

Keith Isaacs
Bruce Cole
Sanders Pace Architecture

Recognition:

AIA East Tennessee Award of Merit 2025
AIA East Tennessee Committee on the Environment Award 2025